• arhitektura
  • dizajn
  • art
  • prostor
  • druge stvari
  • proizvodi
  • impressum
  • copyright
  • pravne odredbe
  • kontakt
  • twitter
  • facebook
HRENG

Kampovi Mon Perin

  • Naslovna
  • arhitektura
  • Kampovi Mon Perin

Predstavljamo projekt rekonstrukcije javnih objekata u Kampovima Mon Perin u Općini Bale. Autori su arhitekti projektnog ureda NFO, koji o koneceptu projekta govore u tekstu koji slijedi.

“Kampovi Mon Perin nalazi se u Općini Bale te se rasprostire na 9 km obale na pola puta između Rovinja i Pule.

Cijela zona je zaštićena dijelom kao prirodna cjelina i arheološko nalazište tako da su uvjeti gradnje iznimno strogi.

1 sit

 

Projektni zadatak bio je podići kategorizaciju kampa sa 2 ** zvjezdice na 4**** između dvije sezone. Unutar zadanih prostorno planskih uvjeta rekonstruirani su objekti ulazne Recepcije kampa, Restorana Porto Buso i 8 sanitarnih čvorova. Postojeći objekti su mahom bile “rekonstrukcije rekonstrukcija” s premalim kvadraturama i substandardnog uređenja.

Postojeći objekti smjeli su se rekonstruirati, ali u zadanim gabaritima bez povećanja, što je bila iznimno otegotna okolnost s obzirom na traženo podizanje standarda u smislu kategorizacije. Također je bio cilj stvoriti suvremeni kamp s građevinama koji i arhitektonskim jezikom sugeriraju nov smjer razvoja usluga unutar kampa.

0

Recepcija, stanje prije rekonstrukcije

 

Recepcija se nalazi na ulazu tj. na dodirnoj točki između 2 kampa Mon Perina (San Polo i Colone), tu se vrši distribucija gostiju i prikupljaju osnovne informacije o uslugama Kampa.

 

1

2

3

Osim same rekonstrukcije postojećeg gabarita recepcije dodana je vanjska pergola kao svojevrsni predprostor za okupljanje gostiju koja uz samu zgradu recepcije obgrljuje i 3 ‘presvučena’ kontejnera za potrebe uprave kampa tokom sezone.

5

8

Tlocrtni trokutasti oblik proizašao je iz oblika sugeriranog postojećim prometnicama koji usmjeravaju posjetitelje u jedan ili drugi kamp.

7

4

 

Restoran Porto Buso nalazi se na atraktivnoj lokaciji uz samu obalu te je i njegova osnovna forma definirana postojećim objektom.

002

Restoran, stanje prije rekonstrukcije

Rekonstrukcijom se samo zadržao osnovni konstruktivni sistem uz potpunu promjenu interijera, fasadnih obloga i opreme. Uz restoran nalazi se velika terasa, dječje igralište i prostor za montažnu pozornicu.

11

10

9

15

14

 

 

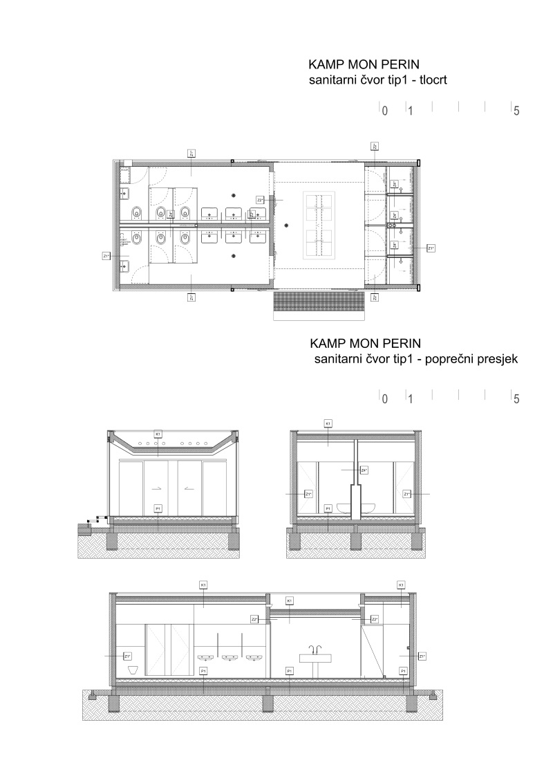
Sanitarni čvorovi su bili poseban izazov upravo radi potrebe za većim brojem sanitarnih čvorova i pratećih sadržaja u istom gabaritu.

00005

Sanitarni čvorovi, stanje prije rekonstrukcije

 

Težnja je bila da se kroz sličnu oblikovnu formu sagrade svih 8 sanitarnih čvorova.

U kampu San Polo nalazi se 4 sanitarna čvora napravljenih sa završnom obradom od kamenih prefabrikata dok se u kampu Colone nalaze 4 sa završnom obradom HPL ploča.

16

19

Sanitarni čvorovi su projektirani kao tipski (2 tipa). Sastoje se od zatvorenih djelova za sanitarije te natkrivenog dijela za pranje posuđa i odjeće. Takvom dispozicijom sanitarni čvorovi unutar sebe ostvaruju i komponentu javnog te postaju mjesta susreta.

18

17

20

Bez izvrsne suradnje s naručiteljem Mon Perin d.o.o. koji je prepoznao važnost ovakve intervencije u kampu i voditelja projekta Ivana Fabrisa iz IF projekta d.o.o. ne bi bilo moguće u ovako kratkom roku i prilično teškim uvjetima ostvariti ove realizacije”, ističu arhitekti.

24

21

22

 

 

Puni naziv ostvarenja: Rekonstrukcija javnih objekata u Kampovima Mon Perin u Općini Bale

Lokacija: Kamp Mon Perin, Općina Bale

Investitor/Naručitelj: Mon Perin d.o.o., Trg La Musa 2, Bale

Autori: NFO d.o.o., Projektni tim: Kata Marunica, Dijana Pavić, Nikica Pavlović, Nenad Ravnić, Goran Rukavina, Filip Vidović

Suradnici: Voditelj projekta: IF Projekt d.o.o.

Projektanti suradnici: Zona Creativa d.o.o., IEP d.o.o., Technica suprema d.o.o., Radionica statike d.o.o.

Godina projekta: 2015.

Godina realizacije: 2016.

Vrijednost investicije: aproksimativno 14.000.000,00 kn

Autor fotografija: Bosnić + Dorotić

 

Nacrti

02

03

04

01

001

0001

0002

0003

0004

Podijeli
pogledaj.to
28 lipnja, 2016

Vezani sadržaji

2 ožujka, 2026

Meštrovićev paviljon u žutom plaštu


Saznajte više
16 srpnja, 2025

Obnova Meštrovićevog paviljona


Saznajte više
12 lipnja, 2025

Dodijeljene nagrade Udruženja hrvatskih arhitekata za 2024.


Saznajte više
pogledaj.to
28 lipnja, 2016

Oznake

arhitektura (1471) art (273) bizarno (210) DAZ (88) dizajn (565) dogadjanja (554) događanja (126) ekologija (83) festival (116) film (168) fotografija (556) grad (160) grafički dizajn (117) HDD (83) Hrvatska arhitektura (110) instalacija (253) izložba (650) javni prostor (303) koncept (139) London (115) moda (108) msu (94) nagrade (187) natječaj (440) New York City (103) oblikovanje (365) performans (82) politika (103) predavanje (122) produkt dizajn (200) prostor (222) radionica (99) Rijeka (160) skulptura (86) Split (305) stanovanje (99) street art (81) tehnologija (88) turizam (89) UHA (90) umjetnost (536) urbanizam (218) video (139) Zagreb (939) zanimljivosti (188)

Najčitanije

  • Titova vila “Izvor”, opljačkana i ...
  • Golotinjom do posla, siguran je ...
  • Issa Megaron: samoodrživa ljepotica u ...
  • Užitak pogleda na gole muškarce
  • Ubaci sliku, pa traži

Preporučujemo

  • Šarm starih vremena na Volovčici
  • Titova vila “Izvor”, opljačkana i ...
  • Golotinjom do posla, siguran je ...
  • Issa Megaron: samoodrživa ljepotica u ...
  • Ubaci sliku, pa traži
© 2020 Pogledaj.to
  • impressum
  • copyright
  • pravne odredbe
  • kontakt
  • twitter
  • facebook