• arhitektura
  • dizajn
  • art
  • prostor
  • druge stvari
  • proizvodi
  • impressum
  • copyright
  • pravne odredbe
  • kontakt
  • twitter
  • facebook
HRENG

Bečka Vila Ka

  • Naslovna
  • arhitektura
  • Bečka Vila Ka

Svaki građevni tip uključuje spektar novih tumačenja i razrada. Množina tipoloških varijacija zbijenih u obiteljskoj kući oduvijek je oduševljavala arhitekte. Izazovi lokacija, vrste konstrukcija, varijacije materijala i svjetlosnih frekvencija dio su predodžbe o posebnosti zadatka. U traženju pregnantnog izraza, istraživanje započeto u nekoliko ranije dovršenih kuća Zoran Bodrožić sada produbljuje i nadograđuje.e.

Piše: Toni Bešlić

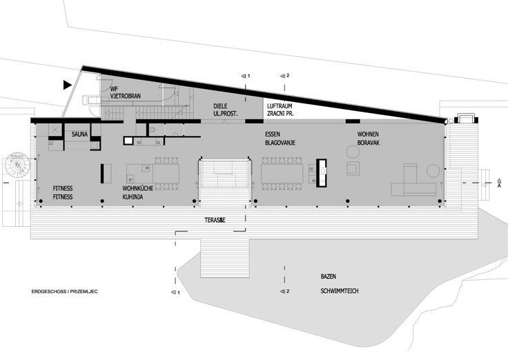
Lomljenjem pravokutne ravnine stvara dvostruko presavijenu ovojnicu, a stakleni ekran južne fasade dobiva okvir naglašene horizontalnosti. Zbog velikih dimenzija staklo se gotovo i ne uočava pa priroda postaje dio stanovanja. Obloga od crnih betonskih ploča izdvaja kuću od meteža svakodnevice i daje joj auru svečanosti, gotovo nedodirljivosti. Istodobno crna je boja i optički smanjuje. Smještena na obroncima Bečke šume kuća je u potpunosti otvorena jugu, a njezin raspored određuju vizure na grad. Tlocrt je linearno organiziran kroz četiri etaže.

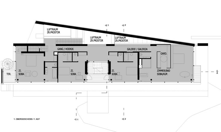
U podrumu spremišta, dnevni boravak i kuhinja sblagovaonicom u prizemlju, spavaonice na prvome katu, a ured na drugome.Strukturna kompaktnost odražava se u i jasno?i funkcijske podijele. Ulazni je hol trokutastog oblika ipredstavlja otklon od strogo?e uzdužnoga tlocrta. Njegova dvoetažna visinaotkriva ve? na ulazu unutarnji ustroj ku?e. Trebao bi signalizirati ulaznusekvencu, ali i kontekstualizirati ku?u. Kosa stranica njegove sjeverne fasadeparalela je susjednim parcelama. Cjeline i etaže istaknute su plasti?komdiferencijacijom. Ekspresivna forma iznad prvoga kata dobiva strehu. Onarazdvaja stambeni dijelove od uredskih prostorija zadnje etaže, ali preuzima ifunkciju sjenila. Smanjuje mjerilo ku?e, ukazuje na dvojnost, ali ivišeslojnost teme preklapanja i prelamanja. Izlomljena strukturna vrpca objašnjavai ideju fasadnog rasta, razli?itoga ponavljanja od baze i to?ke dodira s tlomdo krovnoga završetka.

Uživanje u geometriji ne iscrpljuje se manirističkom kombinatorikom, nego proizlazi iz funkcijskoga podčinjavanja i razlikovanja. Zoran Bodrožić razvija kuću iz prostorne i konstruktivne logike. Njega zaokuplja odnos konstruktivnoga rastera i formalnog izraza. Zato struktura postaje nositeljica izraza. Zbog štednje vanjsko je spiralno stubište na zapadnome pročelju moralo otpasti. Ista je sudbina zadesila i izravnu vezu dnevnoga boravka s vidikovcem na krovu. Osim estetske komponente pozornost danas zaokuplja i štednja energije. Duboke bušotine oko kuće, toplinska crpka i međuprostor u obliku zračnoga tampona na unutarnjoj strani sjeverne fasade dijelovi su danas već standardne opreme za pasivno solarne kuće.

Projekt: Vila Ka

Arhitekti: Zoran Bodrožić

Lokacija: Beč

Naručitelj: privatni

Godina projektiranja: 2006.

Godina realizacije: 2009.

Ukupna tlocrtna površina: 840 m2

Površina obuhvata: 2000 m2

Program: obiteljska kuća

Fotografije: Zoran Bodrožić

Podijeli
pogledaj.to
7 prosinca, 2009

Vezani sadržaji

2 ožujka, 2026

Meštrovićev paviljon u žutom plaštu


Saznajte više
16 srpnja, 2025

Obnova Meštrovićevog paviljona


Saznajte više
12 lipnja, 2025

Dodijeljene nagrade Udruženja hrvatskih arhitekata za 2024.


Saznajte više
pogledaj.to
7 prosinca, 2009

Oznake

arhitektura (1471) art (273) bizarno (210) DAZ (88) dizajn (565) dogadjanja (554) događanja (126) ekologija (83) festival (116) film (168) fotografija (556) grad (160) grafički dizajn (117) HDD (83) Hrvatska arhitektura (110) instalacija (253) izložba (650) javni prostor (303) koncept (139) London (115) moda (108) msu (94) nagrade (187) natječaj (440) New York City (103) oblikovanje (365) performans (82) politika (103) predavanje (122) produkt dizajn (200) prostor (222) radionica (99) Rijeka (160) skulptura (86) Split (305) stanovanje (99) street art (81) tehnologija (88) turizam (89) UHA (90) umjetnost (536) urbanizam (218) video (139) Zagreb (939) zanimljivosti (188)

Najčitanije

  • Titova vila “Izvor”, opljačkana i ...
  • Golotinjom do posla, siguran je ...
  • Užitak pogleda na gole muškarce
  • Issa Megaron: samoodrživa ljepotica u ...
  • Ubaci sliku, pa traži

Preporučujemo

  • Golotinjom do posla, siguran je ...
  • Užitak pogleda na gole muškarce
  • Titova vila “Izvor”, opljačkana i ...
  • Ante Vrban – arhitekt za ...
  • Issa Megaron: samoodrživa ljepotica u ...
© 2020 Pogledaj.to
  • impressum
  • copyright
  • pravne odredbe
  • kontakt
  • twitter
  • facebook