• arhitektura
  • dizajn
  • art
  • prostor
  • druge stvari
  • proizvodi
  • impressum
  • copyright
  • pravne odredbe
  • kontakt
  • twitter
  • facebook
HRENG

Drive-in hotel

  • Naslovna
  • arhitektura
  • Drive-in hotel

Austrijski ured Sohne & Partner Architekten osmislio je hotel Caldor u Munchendorfu, u Austriji. Hotel je smješten na osam minuta vožnje od Beča, uz glavnu prometnicu i uz najveći trgovački centar u Austriji. Vlasnik je htio niskobudžetni hotel, što je uvjetovalo jednostavnu i, recimo, skromnu gradnju. Ekonomičnost je uvjetovala i da gosti sami obavljaju check in na uređaju postavljenom u ulaznom prostoru hotela.

Glavni motiv koji doprinosi prepoznatljivosti i upečatljivosti hotela je perforirani panel fasade prvoga kata. Perforacije su izvedene na temelju uzorka dobivenog apstrahiranjem hotelskog loga. Perforirani panel prati ravninu pročelja, a na mjestu ulaza je lagano istaknut kako bi natkrio i zaštitio ulazni prostor.

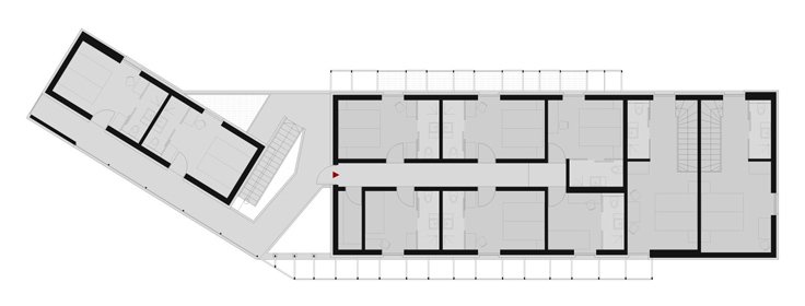
Tlocrt zgrade čine dva pravokutnika, koja su spojena pod kutom prilagođenom krivulji prometnice u neposrednoj blizini. Razlog loma zgrade leži u namjeri da se pruži što bolja vidljivost potencijalnim gostima koji putuju automobilima.

Podijeli
Barbara Matejčić
11 prosinca, 2009

Vezani sadržaji

2 ožujka, 2026

Meštrovićev paviljon u žutom plaštu


Saznajte više
16 srpnja, 2025

Obnova Meštrovićevog paviljona


Saznajte više
12 lipnja, 2025

Dodijeljene nagrade Udruženja hrvatskih arhitekata za 2024.


Saznajte više
Barbara Matejčić
11 prosinca, 2009

Oznake

arhitektura (1471) art (273) bizarno (210) DAZ (88) dizajn (565) dogadjanja (554) događanja (126) ekologija (83) festival (116) film (168) fotografija (556) grad (160) grafički dizajn (117) HDD (83) Hrvatska arhitektura (110) instalacija (253) izložba (650) javni prostor (303) koncept (139) London (115) moda (108) msu (94) nagrade (187) natječaj (440) New York City (103) oblikovanje (365) performans (82) politika (103) predavanje (122) produkt dizajn (200) prostor (222) radionica (99) Rijeka (160) skulptura (86) Split (305) stanovanje (99) street art (81) tehnologija (88) turizam (89) UHA (90) umjetnost (536) urbanizam (218) video (139) Zagreb (939) zanimljivosti (188)

Najčitanije

  • Titova vila “Izvor”, opljačkana i ...
  • Golotinjom do posla, siguran je ...
  • Issa Megaron: samoodrživa ljepotica u ...
  • Užitak pogleda na gole muškarce
  • Ubaci sliku, pa traži

Preporučujemo

  • Šarm starih vremena na Volovčici
  • Titova vila “Izvor”, opljačkana i ...
  • Golotinjom do posla, siguran je ...
  • Issa Megaron: samoodrživa ljepotica u ...
  • Ubaci sliku, pa traži
© 2020 Pogledaj.to
  • impressum
  • copyright
  • pravne odredbe
  • kontakt
  • twitter
  • facebook