



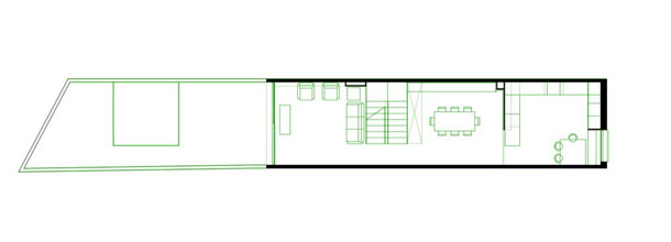
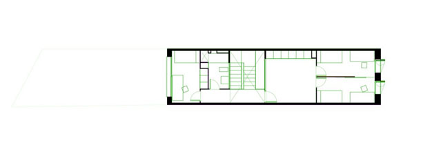
O uobičajenim problemima i kreativnim projektantskim rješenjima na dugim, a uskim parcelama unutar gustih struktura japanskih gradova pisali smo već u nekoliko navrata, a sa sličnim inputima „nezgodne lokacije“, no ovaj put na europskom tlu, u Barceloni, susreli su se arhitekti studija H arquitectes. Lokacija za projektiranje obiteljske kuće “127” za obitelj s troje djece bio je kvart Sabadell u tipičnoj zoni blokova projektiranih za stanovanje radnika poredanih duž ortogonalnih ulica. Širina pojedine stambene jedinice je četiri metra. Neobičnost projekta je svakako raspored prostorija, gdje na prizemlju nisu ustaljeni javni programi najdostupnije etaže kuće, nego je ono rezervirano za roditeljske prostore zbog toga što najmlađe dijete ima već 10 godina, pa je potpuno odvajanje dječjeg i roditeljskog trakta moguće (i poželjno). Dnevni prostori boravka, kuhinje i blagovanja su na prvom katu, nanizani jedan na drugi, prekinuti stubištem koje povezuje etaže. Druga etaža isključivo je namijenjena sadržajima i prostorijama za djecu. Ovakve parcele najčešće postavljaju problem nedovoljne količine dnevnog svjetla za sve dijelove kuće, no na tu otežavajuću okolnost arhitekti su odgovorili rješenjem formiranja dvorišta po tlocrtnoj sredini roditeljskog trakta, a do ostalih dijelova kuće koji nisu na fasadi dopire svjetlost kroz stubišnu vertikalu.














Više o projektu pogledaj ovdje