
Posljednji rad uspješnog švicarskog arhitektonskog dvojca Herzog & de Meuron, 1111 Lincoln Road u Miamiju, sve je samo ne običan parking. Projekt je plod suradnje sa Robertom Wannetom, iskusnim developerom, zaslužnim za iniciranje i gradnju niza ikoničnih struktura u SAD-u. Njihovo partnerstvo nastavak je Wannetove predanosti u unapređivanju internacionalne prepoznatljivosti Miamija, kao umjetničke, komercijalne i kulturne destinacije 21. stoljeća. 1111 Linclon road predstavlja suradnju poznatih švicarskih majstora, krajobraznih arhitekata te umjetnika i dizajnera kojima je bio cilj stvoriti jedinstven prostor koji spaja šoping, stanovanje, javne prostore te veliko parkiralište. Tako nova građevina Herzoga & de Meurona, za razliku od uobičajenih monofunkcionalnih prometnih zdanja, miješa program unutar objekta na jedan originalan način kakav, naglašavaju arhitekti, još nije viđen. Izuzev programatskog mixa njihov projekt raskošno je arhitektonsko djelo, ekspresivne i zaigrane forme izvedene isključivo u betonu sa segmentima staklene fasade. Naizgled parkirališna zgrada zapravo je ansambl niza elemenata, zanimljive i originalne arhitekture, postojećih kuća švicarskih arhitekata u potpuno drugačijem kontekstu, umjetnosti, brutalističkog izgleda te uokvirenog pejzaža, formiranih među izmaknutim pločama. Monumentalna betonska građevina, koju opisuju kao mišić bez kože, sastoji se od šest parkirališnih etaža različitih visina, prozračnih te otvorenih ka izvanrednim vizurama grada.









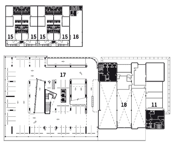
*tlocrt prizemlja

*tlocrt drugog kata

*poprečni presjek

*uzdužni presjek
Više o projektu pogledajte na službenoj stranici 1111 Lincoln road ili u tekstu Rowan Moorea ovdje.