

U sklopu Godišnje izložbe ostvarenja hrvatskih arhitekata u 2010. godini, koja će biti otvorena u Splitu krajem tjedna, biti će dodijeljene nagrade UHA-e za najuspješnija autorska ostvarenja hrvatskih arhitekata, realiziranih u 2010. godini, u Hrvatskoj i u svijetu.
O nominiranim realizacijama koje konkuriraju za nagrade ‘Bernardo Bernardi’, ‘Drago Galić’ i ‘Viktor Kovačić’ pisali smo ovdje, a sve nominirane predstaviti ćemo na stranicama pogledaj.to.
Danas predstavljamo „Poslovnu zgradu sjedišta Spectator Grupe“ u Zagrebu, čiji su autori Lea Pelivan i Toma Plejić, arhitekti iz Studia UP te Silvio Vujičić i Ivana Franke. Njihov projekt konkurira za nagradu Bernardo Bernardi.
Više o projektu pogledajte u nastavku:

Poslovna zgrada sjedista Spectator Grupe na Radničkoj cesti br.45 u Zagrebu; Projekt preoblikovanja postojećeg projekta / Projekt unutrašnjeg uređenja
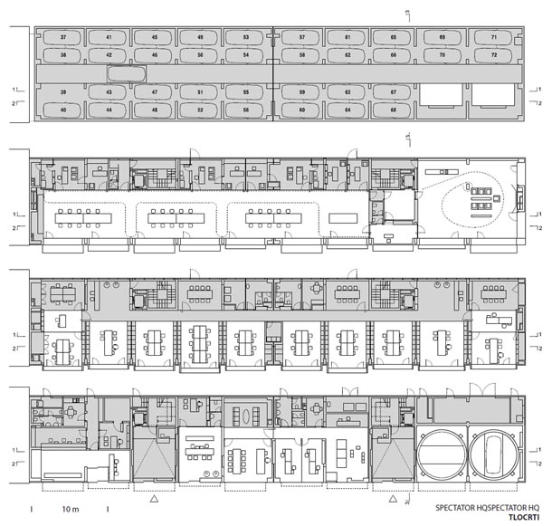
Uvodne napomene – Zadatak ovog projekta bio je preoblikovanje postojećeg projekta (rekonstrukcije zatečene zgrade na parceli) za sjedište Spectator Grupe. U trenutku početka angažmana otvoreno je gradilište, te su započeti radovi iskapanja i zaštite građevinske jame, što je odredilo karakter projekta. Prethodno projektirani armirano-betonski skeletni sistem je zadržan, a modifikacije u konstruktivnom sistemu vezane su za jezgre stubišta. Ideja/metodologija rada bila je zadržati projektirano stanje konstruktivnih elemenata u što većoj mogućoj mjeri, a intervenirati laganim konstrukcijama.



Programski zadatak – bio je organizirati članice Spectator Grupe koje su do tada djelovale na nekoliko lokacija u Gradu na način da sve imaju jednako dobre uvjete za rad.
Koncept unutrašnje organizacije – preložen je model ‘radnih kapsula’ koje se umeću između konstruktivnog skeleta. S obzirom na limitirane prostorne uvjete zatečenog projekta (relativno mala konstruktivna visina, plitka dubina) stranice radnih prostora visoko su reflektivne te se perceptivno doima prostor znatno veći. U radnim kapsulama organizirane su grupe od dva do šest zaposlenika. Predloženi sistem radnih prostora fluidan je, nema pregrada prema prostorima komunikacija te predstavlja novi tip uredskog prostora – između sačastih ćelija i potpuno otvorenog principa.



Prostorna organizacija – U dvije podzemne razine organizirana je potpuno automatizirana garaža s kapacitetom od 75 parkirališnih mjesta. U prizemlju se nalaze dva ulazna predvorja za poslovnu zgradu, ulaz u garažu te komercijalni izložbeni saloni. Na prvom, drugom i trećem katu organizirani su radni prostori za članice grupe s pratećim sadržajima – salama za radne sastanke, čekaonice, pomoćne prostore. Na četvrtom katu organiziran je prostor za rad uprave, ova razina sadržava ulazni prostor dvostruke visine, vip salon, veliku dvoranu za sastanke te seriju mini ureda za menadžere uprave. Na krovu se nalazi čajni paviljon za sastanke, a kompletan krov zamišljen je kao zeleni vrt.

*za preuzimanje tlocrta u pdf formatu kliknite ovdje

*za preuzimanje presjeka u pdf formatu kliknite ovdje

*za preuzimanje aksonometrije u pdf formatu kliknite ovdje
Godina projektiranja: 2008. – 2009.
Godina dovršetka gradnje: 2009.
Povrišina lokacije: 860 m2
Ukupna tlocrtna površina: 5.300 m2
AUTORI:
Lea Pelivan, Toma Plejić STUDIO UP + Ivana Franke + Silvio Vujičić
SURADNICI:
Silvija Laković, Dujam Ivanišević, Antun Sevšek, Marina Zajec, Iva Denona Vusić, Mirko Majić, Vjekoslav Gašparović, Mateo Biluš
FOTOGRAFIJE:
Robert Leš
