

Na polju projektiranja obiteljskih kuća iz Japana gotovo uvijek dolaze smjela i sasvim drugačija rješenja. Jedna od zanimljivijih realizacija arhitektonske prakse A.L.X. iz Tokya projekt je „On the cherry blossom“, za obiteljsku kuću u istom gradu, čiji su oblik generirale dvije rascvjetane trešnje na nasuprotnoj strani ulice. Šarmantna dominantnost neobično lijepog drva trešnje, u ovako gustoj urbanoj strukturi jedne od bezbroj rezidencijalnih ulica japanskog metropolisa, bila je elementarni inicijator pri osmišljavanju koncepta.
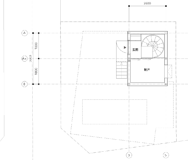
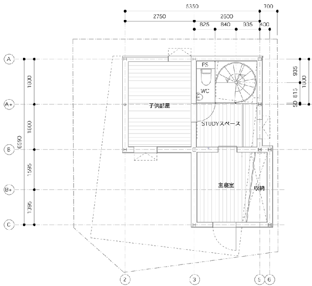
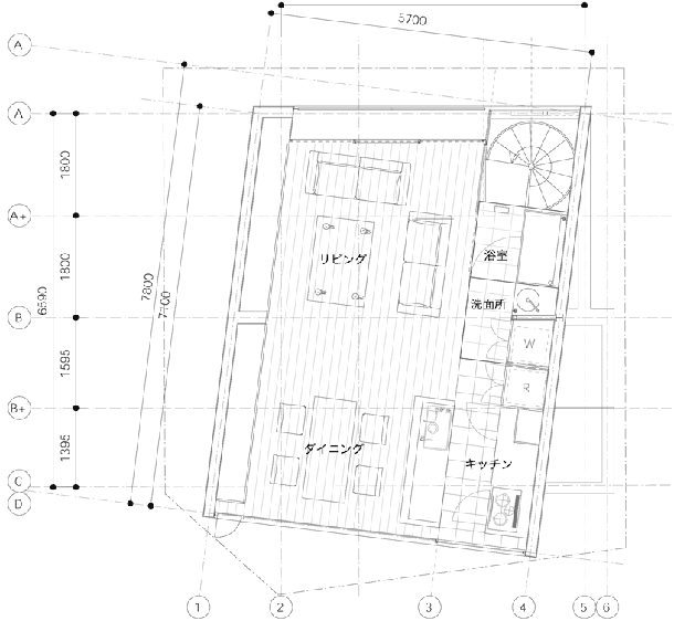
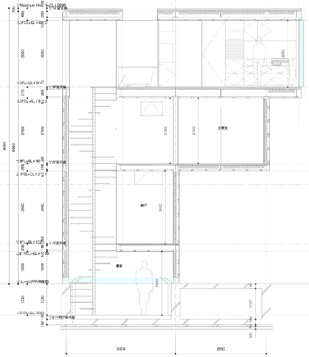
Kako je mogućnost realizacije neometanog funkcioniranja života i privatnosti, pri projektiranju prizemne etaže kuće, zbog dostupnosti i otvorenosti bila poprilično ograničena, arhitekti su sve važnije prostore objekta podigli na gornje etaže. Prizemna etaža kuće, koju ispunjava samo ulazni prostor, tako je postala samo kontaktna zona lokacije izgradnje s uzdignutim sadržajima. Izdižući se od ulice tlocrtna površina kuća se povećava, stvarajući privatniju zonu, koja se prozorima nesmetano otvara na ulicu te pruža pogled na krošnje prethodno spomenutih stabala trešnje.

Više o ovom projektu te ostalim uradcima prakse iz Tokyja, poglavice originalnih minimalističkih obiteljskih kuća realiziranih širom Japana, možete pogledati na njihovim web stranicama.






Fotografije i nacrti: designboom