
Natječaj za Veteranski centar u Daruvaru nedavno je zaključen, a pruža nam sjajan primjer kako kompetentan, generacijski raznolik i pouzdan žiri može privući i inspirirati nekoliko dobrih/odličnih radova i nagraditi najbolji. Atraktivan program, javni naručitelj i fantastična lokacija također su elementi uspjeha, a testiranje tipologije koja bi u varijacijama mogla biti vrlo tražena za zdravstveni turizam, postavlja značajan predložak za neke buduće gradnje.
Smješten u šumi, odmah nasuprot Kliničko bolničkog centra, a sa središtem Daruvara povezan pješačkim stazama rimske park-šume, Centar je hibrid s prostorijama za stalni i povremeni boravak veterana i prateće sadržaje, ali dijelom i javni objekt pristupačan svakome.
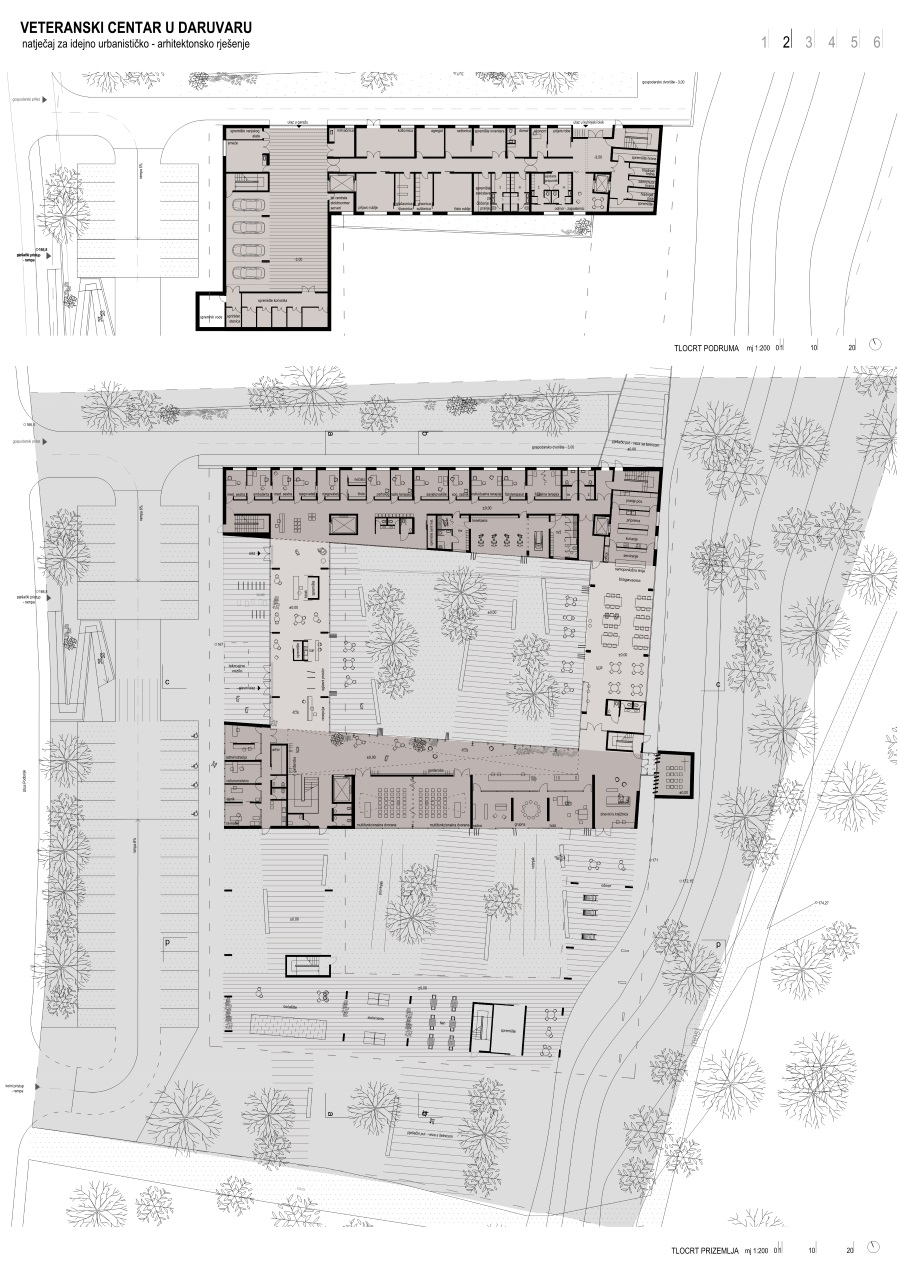
*situacija s tlocrtom
Pobjednički rad profesorica Sanje Filep, Vesne Mikić i koautora vodio se suvremenom pretpostavkom da zgrade isključivo za specifične grupe korisnika rezultiraju društvenom izolacijom i nisu poticajne sredine za oporavak pa plan predstavlja i nedvosmislen poziv svakome da koristi dijelove prostora. Nekom budućem upravitelju pružen je prostorni okvir kojim je izravno sugeriran režim korištenja – nadajmo se da će to prepoznati.
*tlocrt prizemlja
Čisti, čitki i suptilno proporcionirani tlocrti i presjeci atrijske zgrade utopljene u zelenilo odaju poštovanje klasičnoj modernoj arhitektonskoj školi, a samo uvlačenje šume u kuću, bez obzira na razlike u mjerilu i namjeni, evocira lakoću i transparentnost Case de Vidro Line Bo Bardi.
Drveni plašt s horizontalnim brisolejima dodatno olakšava i smanjuje uzdignuti volumen, a useljena će zgrada imati trajno nježno dinamizirano pročelje. U prizemlju prevladavaju staklo i sirovi beton, a ono je u potpunosti ostakljeno, osim sa sjeverne strane gdje su smještene ambulante.
Velikim staklenim površinama prema terenu i atrijima osigurava se prožimanje vanjskog okruženja s atrijima i interijerom kuće, a ostakljena je i središnja lamela čime se osigurava preglednost zgrade kroz sve etaže sa mjesta glavne vertikalne i horizontalne komunikacije.
*tlocrt prvog kata i presjeci
Središnja se lamela prostorno proteže kroz sve etaže i u njoj se nalaze društveni sadržaji: multifunkcionalna dvorana, dvodijelna s mogućnošću podjele u dvije učionice, knjižnica, dnevni boravak s tv-zonom, te prostorije za grupnu, hobi i radnu terapiju. Na gornjim galerijama središnje lamele, koja je poveznica zapadnog i istočnog krila smještajnih jedinica, također se nalaze zone dnevnog boravka s televizijom, čajne kuhinje i čitaonice.
U prizemlju u istočnom krilu smještena je blagovaonica s kuhinjom vezana na komunikaciju sjeverne, terapijsko-rehabilitacijske zone i središnjom lamelom, zonom društvenih sadržaja. Kuhinja se nalazi na sjeveru, preko officea je povezana s blagovaonicom te ima zasebni lift i stubište kojim je direktno povezana s polu-ukopanom gospodarskom etažom u kojoj se nalaze kuhinjska spremišta i sanitarni propusnik kuhinjskog osoblja sa dvorištem.
*tlocrt drugog kata
Na prvom i drugom katu su četiri krila sa smještajnim jedinicama. Sobe imaju istočnu ili zapadnu, odnosno južnu orijentaciju, s izlaskom na lođu. Po krilima zgrade smještajne su jedinice grupirane u manje prostorno-funkcionalne grupe pa se tako u sjevernom krilu nalaze na jug orijentirane jedinice namijenjene za smještaj HRVI s prilagođenom kupaonicom i povezanom sobom za osobu u pratnji, a u zapadnom su gušće strukturirane jedinice za povremeni smještaj, kao zasebna prostorno-funkcionalna grupa. Jedinice za stalni boravak smještene su u istočnom krilu zgrade, a kao i one južno orijentirane, gledaju na šumu.
*presjeci
Iako je u svim nagrađenim natječajnim rješenjima na neki način uspješno varirana tema povezanosti s prirodnim okolišem, prvonagrađeni rad odskače jednostavnošću i dosljednim implementiranjem aspekta društvenosti takvog prostora.
Zadovoljivši formalne uvjete, autori su uspjeli isprojektirati gotovo idealtipski objekt kojem zdravstvena funkcija nije doslovno eksplicirana oblikovanjem pa se može čitati i kao zgrada za prošireno kolektivno stanovanje, turistički objekt, zgrada društvene namjene sa smještajem pa i studentski dom, na primjer.
Ta mogućnost da se prostor ne čita namjenski jednoznačno, naročito za one veterane koji će u njemu trajno boraviti, poštuje i različitosti habitusa korisnika, različitosti potreba za oporavkom, što u velikoj mjeri osigurava ispunjenje glavne funkcije zgrade. Racionalnost konstrukcije i oblikovanja dobar je zalog za korektnu izvedbu.
*pročelja
Ocjenjivački sud:
dr. sc. Dražen Juračić, ovlašteni arhitekt, predsjednik OS-a,
Vesna Nađ, dipl.iur., dopredsjednica OS-a, doc.
Vladimir Kasun, ovlašteni arhitekt,
Marin Mikelić, ovlašteni arhitekt,
Vedran Babić, ovlašteni arhitekt,
mr.sc. Dubravko Bačić, ovlašteni arhitekt
Prva nagrada, autorski tim:
prof.dr.sc. Sanja Filep, dia
prof.dr.sc. Vesna Mikić, dia
Autori suradnici:
Pero Ćeskić, dia
Boris Soldo, dia
Vana Pavlić, st. arh.
Marcela Ostroški, st. arh.
Mirna Javorović Pehar, dia
Tomislav Pelin, dipl.ing.stroj., strojarstvo
prof.dr.sc. Josip Galić, dia, konstrukcija
Josip Brcković, dia, 3D