
Kada je u skorojevićkom diskursu zaživio naziv “štakornjaci” za unutrašnjosti donjogradskih blokova i postao krunski argument za interpolacije u nešto što je bit te tipologije – otvoreni prostor između zgrada – postavljena je prijetnja da se čitav zagrebački centar uništi investitorskim urbanizmom. Kratkovidno planiranje donekle je zauzdano zaštitom određenih zgrada kao trajnih kulturnih dobara 2007. godine, ali medijski su tiho prošli vapaji poput onih Željke Čorak i, začudno, malog broja arhitekata koji su zagovarali štićenje cjeline urbane strukture i svih onih parkova, voćnjaka, igrališta, ružičnjaka (po kojem se, primjerice, Kurelčeva ulica nekada zvala Ružina), privatnih, poluprivatnih zajedničkih i javnih površina, ali i niskih građevina u bloku sa svojim specifičnim urbanim sadržajima (kina, kafići, obrtničke radionice, spremišta, ateljei…), odvojenih zgradama od bučnih ulica koje definiraju blok. Kada se na to nerazumijevanje u slučaju Cvjetnog dodala još i uzurpacija javne pješačke površine garažnim ulazom, poricanje kulturnog identiteta zagrebačkog centra bilo je potpuno. Taj pilot-projekt za idućih 169 gradskih blokova izvukao je na površinu sav jad tranzicijske (često koruptivne) političke i stručne pozicije, ali civilnom je inicijativom pod vodstvom Prava na grad i Zelene akcije ipak senzibiliziran dio javnosti – opće, stručne, političke pa i one investitorske – da vrijednost neke građevine, čak ni puka ekonomska vrijednost, nije samo u broju kvadrata kombiniranih s lokacijom, već u postizanju ravnoteže između privatnog i javnog interesa.
Ban Centar Svebora Andrijevića, Senke Dombi i Otta Barića primjer je spretne interpolacije u definiranu blokovsku strukturu
Naravno da se postojeća slika grada kroz vrijeme i mijenjanje potreba modificira, no da nije nemoguće spretno projektirati interpolaciju u definiranu blokovsku strukturu, pokazuje nam recentni primjer Ban Centra, stambeno-poslovne zgrade na uglu Cesarčeve i Kurelčeve ulice. Nedovršeni blok u neposrednoj blizini glavnog zagrebačkog trga, Katedrale i šarmantnih, iako zapuštenih jednokatnica u Staroj Vlaškoj, arhitektonski je zaključen na način da artikulira sve zatečene vrijedne uvjete, a doskoči onima manje povoljnima. Autori Svebor Andrijević, Senka Dombi i Otto Barić na pozivnom su natječaju 2007. godine izborili priliku da ponude prostorni režim koji odgovara i baštinjenoj matrici, ali i suvremenim potrebama stanara te stanovnika i posjetitelja koji tim potezom prolaze.
Program – pretežno kolektivno stanovanje – predvidljiv je u trenutnim investicijskim okolnostima i logičan izbor nauštrb luksuznog hotela na toj lokaciji o kojem se desetljećima govorilo, ali tih 66 stanova (za 250-300 novih stanovnika) zapravo već ima svoje pandane, iako nešto drugačijeg tipa ekskluzivnosti, u krugu od nekoliko stotina metara pa prigovori vezani uz negativne aspekte gentrifikacije nemaju pravog uporišta. Također, garaža je namijenjena samo korisnicima prostora čime se izbjeglo generiranje pojačanog prometa, a odgovornost projektanata i investitora očita je i u odluci da, iako im je ponuđen s javne gradske površine, garažni ulaz rješavaju na parceli.
Četiri najniže podzemne etaže namijenjene su parkiranju i dostavi, prva podzemna i prizemlje javnim, ugostiteljskim i trgovačkim sadržajima, prvi kat je poslovni (sjedište Europske unije u Hrvatskoj), a preostalih šest nadzemnih etaža namijenjeno je stanovanju. Ukupna bruto površina je 33222 m2, od čega 14397 m2 čini nadzemni dio.
Cesarčeva: Garažni ulaz rješen je na parceli, iako je ponuđen ulaz s javne gradske površine
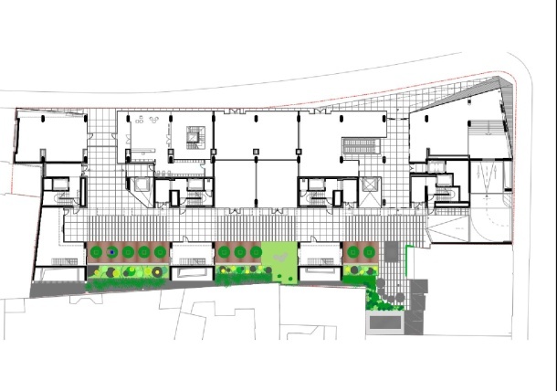
Prepoznavanje i reinterpretacija ambijentalne kvalitete blokovskih dvorišta te želje da se afirmira javni interes, rezultirali su odlukom da se prizemlje obogati javnim pasažem (24 sata dostupnim građanima) i to ne s trgovačkim sadržajima: stvoren je prolaz i ozelenjeni prostor s mogućnošću nekog budućeg povezivanja s ostatkom dvorišta i Jurišićevom, namijenjen šetnji, dječjoj igri, ugostiteljstvu, ali i izložbama, projekcijama… Time je otvorena prilika za odmjerenu revitalizaciju čitave unutarnje površine tog bloka, u perspektivi možda paradigmatski primjer za revitalizaciju zapuštenih potencijala sličnih donjogradskih dvorišta.
Iz prolaza se ulazi i u stubišne vertikale koje vode u stanove slobodnog tlocrta, veličine od 40 do više od 300 kvadrata (dvoetažni stanovi na vrhu, s bazenima), od kojih je većina dvostrano, a dio u južnim krakovima i trostrano orijentiran. Servisnim prostorima stanova svjetlicima su omogućeni prirodna ventilacija i svjetlo sve do prizemlja, a optimalno osvjetljenje na južnoj fasadi postignuto je izmicanjem “češljeva” u presjeku.
*tlocrt prizemlja
*javni prolaz
*javni vrt
Sjeverna fasada oblikovno je uvjetovana visinom vijenca zgrade Gradske štedionice Ignjata Fischera, ali (odlukom arhitekata) i druge Fisherove zgrade u bloku, one u Kurelčevoj 4. Također, natječajem je sugerirana ostakljena fasada u kojoj bi se zrcalila Katedrala, no arhitektonski odgovor nije nimalo banalan: fasadna opna lomi se u gornjim etažama pod kutovima koji otvaraju i naglašavaju vizure iz svih okolnih ulica, pa čak i taj željeni odraz Katedrale mjestimično udvostručuju – geometrija je generirana iz morfologije konteksta. Odabrano staklo nije uobičajenog zelenkasto-sivkastog tona već prozirno kako bi se naglasio stambeni karakter, čemu pridonosi i rasterizacija pročelja. Radi protupožarnih uvjeta između stanova po vertikali i horizontali postavljeni su na pročelju puni protupožarni elementi širine metra, koji su prekriveni bijelo emajliranim staklom. Preostali transparentni ostakljeni dio (prozor) širok 7 i visok 2,4 metara, posmično se otvara u formi „francuskog prozora“. Cijelo je pročelje ostakljeno u ravnini bez istaknutih profila čime se dobila glatka, napeta ploha, a oluci za odvodnju oborinske vode uvučeni su u „fuge“ na svakoj od mansardnih etaža. Prozori se prilikom otvaranja uvlače i posmiču u stranu, dok su na mansardnim dijelovima pročelja postavljeni „lamel prozori“ koji se rotacijom otvaraju prema van. Problem sjeverne orijentacije i slabijeg osunčanja umanjen je maksimalnim dimenzijama prozora i aplikacijom translucentnog printa na rubovima prozora koji sunčevu svjetlost, koja upada pod malim kutem, raspršuje dublje u prostor, čime se dobiva dojam veće osunčanosti. On ujedno vizualno prekriva tehničke elemente kao što su vodilice posmičnih prozora i slično. Da bi se ovo postiglo korištena je nova tehnologija printa na staklu. Puna dinamika te fasade bit će vidljiva tek po useljenju u stanove koji se trenutno još uređuju, ali renderi djeluju obećavajuće.
*sjeverno i istočno pročelje
Cesarčeva: Potrebna je prilična umješnost da se zgrada tolikih gabarita uklopi u gradsku matricu
Za zaštitu od sunca na uličnoj (sjevernoj i istočnoj) strani korištene su platnene rolete raznih stupnjeva propusnosti, na južnoj strani aluminijske vanjske rolete, a na zapadnoj i istočnoj strani dvorišnih „češljeva“ postavljene su vanjske zaokretne škure obložene istom keramikom kao i cijela dvorišna fasada. Dok su zatvorene, potpuno se stapaju s fasadom, a otvaranjem se rotiraju za 900 te skrivaju susjedne prostore od pogleda. Sustavi zaštite od sunca, kao i grijanje i hlađenje, spojeni su na sustav „pametne kuće“, koji, osim komfora upravljanja, osigurava i maksimalnu energetsku učinkovitost. Svaki stan ima vlastiti sustav grijanja i hlađenja – ono je površinsko podno, a u neke stanove ugrađeno je i površinsko stropno hlađenje.
Da je zgrada uspjela elegantno doskočiti kompleksnim zahtjevima interpolacije govori u prilog i najčešći komentar prolaznika: “kao da je oduvijek tu”. Može joj se eventualno prigovoriti predimenzioniranost, koju nisu sakrili ni lomovi pročelja, ali potrebna je prilična umješnost da se zgrada tolikih trženih gabarita i neosporno suvremenog oblikovanja diskretno uklopi u danu gradsku matricu. Za sada je propuštena prilika da se ispred formira adekvatno oblikovan trg u novostvorenoj (polu)pješačkoj zoni, no moguće je da buduće prilike rezultiraju boljim rješenjem za koji su sada postavljeni uvjeti. Sve u svemu, u nizu aspekata radi se o kući koja dokazuje da senzibilitet i volja projektanta mogu uspješno komunicirati s investitorskim zahtjevima, ali i javnim potrebama, pa bi stoga na ovdje primijenjen pristup trebalo obratiti pažnju i pri najavljenim intervencijama u druge blokove.
Foto: Senka Dombi, Svebor Andrijević, Otto Barić, Zoran Varunek, Miljenko Bernfest
Ovaj tekst sufinanciran je sredstvima Fonda za poticanje pluralizma i raznovrsnosti elektoničkih medija