• arhitektura
  • dizajn
  • art
  • prostor
  • druge stvari
  • proizvodi
  • impressum
  • copyright
  • pravne odredbe
  • kontakt
  • twitter
  • facebook
HRENG

Funkcionalni vidikovac

  • Naslovna
  • arhitektura
  • Funkcionalni vidikovac

Tijekom mjeseca siječnja na stranicama pogledaj.to predstavljali smo vam realizacije hrvatskih arhitekata iz protekle godine, izvedene projekte iz 2011. uvrštene na UHA-inu godišnju izložbu. Projekti koje smo predstavili nisu osvojili nominacije niti UHA-ine nagrade, ali su se izdvajali od ostalog pokazanog na izložbi te smo ih odlučili predstaviti na pogledaj.to.

Posljednji u nizu projekata s izložbe realizacija hrvatskih arhitekata je Zgrada Agencije za vodne putove i sportske udruge u Vukovaru, koju potpisuju Hrvoje Bakran, Zdravko Krasić i Dražen Plevko, odnosno arhitektonski studio Urbane tehnike. U nastavku pročitajte više o projektu kroz opis arhitekata te pripadajuće fotografije.

Zgrada Agencije za vodne putove i sportske udruge nalazi se u neposrednoj blizini centra grada Vukovara, na Otoku športova na rijeci Dunav. Otok športova je zamišljen kao dio buduće rekreacijske i turističke šetnice Vukovarska luka – Vučedol (prethistorijsko nalazište)– izletište Adica. Dio tog poteza na dijelu između zimske lučice i prostora između dvorca Eltz i Dunava, centralni je dio buduće šetnice i prostor koji svojim programima dobiva značaj novog vukovarskog urbanog prostora, sa mogućim scenarijima događanja kao što su koncerti, sportski događaji, fišijade, kino projekcije, veslačke utrke, pristajanje turističkih brodova i riječnih cruisera, glazbeno scenski događaji, rekreacija građana, prostori galerije na otvorenom, manifestacije vezane uz faze uzgoja ribe, itd.

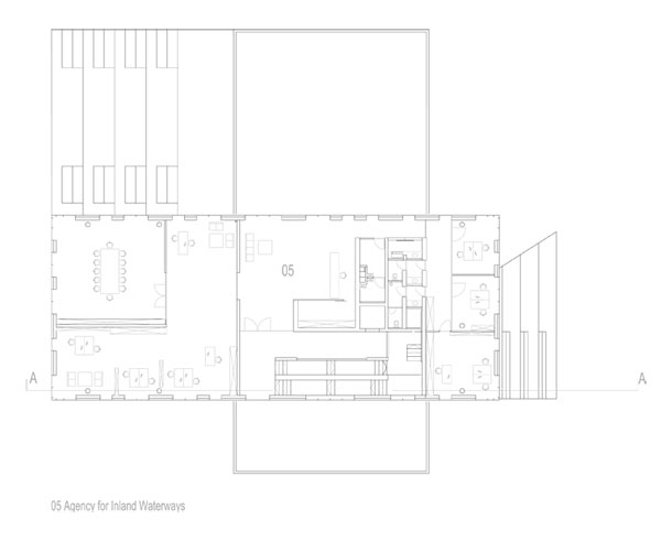
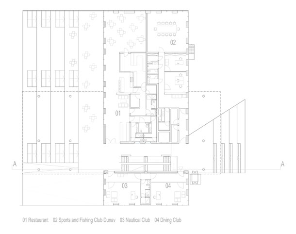
Zgrada agencije i sportskih udruga s vidikovcem postaje centralno mjesto ‘novog’ / redefiniranog centra grada Vukovara. Komunikacije su javne i vode posjetitelje na vidikovac s kojega se pruža pogled na Dunav i centar grada Vukovara. U prizemlju je predviđen restoran s info punktom, orijentiran prema platou otoka i Dunavu, kao i prostori sportskih udruga (sportsko-ribolovno društvo, nautički i ronilački klub) orijentirani prema zimskoj lučici i prostoru za pripremu i održavanje brodova.

Prostor Agencije kao suvremeni poslovni prostor na prvom katu zgrade orjentiran je na sve četiri strane, sa reprezentativnom terasom prema Dunavu.
Krov zgrade je predviđen kao javni prostor namijenjen različitim programima za rekreaciju, sport, kulturu i zabavu.

Zgrada je od terena dignuta na kotu određenu vodoplavnim uvjetima, a razlika u visini je riješena stepenastom plohom natkrivenog i otvorenog prostora prizemlja, koje se također predviđa kao prostor za kulturu i zabavu, ugostiteljstvo i povremene reprezentativne i glazbeno scenske događaje. Prostor suterena predviđen je kao parking, te kao spremište riječnih rekvizita Agencije i sportskih udruga.

Zgrada i prostor Vidikovca postaju novi urbani marker grada Vukovara. Potencijalom organiziranja programa na Otoku športova, zgrada postaje novi generator urbanog u centru Vukovara.


* presjek


* tlocrt / prizemlje


* tlocrt / +1

* tlocrt / +2

TIP OSTVARENJA: javna zgrada

PUNI SLUŽBENI NAZIV OSTVARENJA: ZGRADA AGENCIJE ZA VODNE PUTOVE I SPORTSKE UDRUGE

LOKACIJA: Otok sportova, Vukovar

INVESTITOR: GRAD VUKOVAR

AUTORI: Hrvoje Bakran, Zdravko Krasić, Dražen Plevko

SURADNICI: Vera Ružić, dia

FOTOGRAF: Alan Vajdić

PROJEKTNA TVRTKA: URBANE TEHNIKE d.o.o.

GODINA PROJEKTIRANJA: 2007 / 2008

GODINA DOVRŠETKA GRADNJE: 2010

POVRŠINA LOKACIJE: 2524,00 m2

UKUPNA TLOCRTNA POVRŠINA: 2024,00 m2

Podijeli
pogledaj.to
1 veljače, 2012

Vezani sadržaji

2 ožujka, 2026

Meštrovićev paviljon u žutom plaštu


Saznajte više
16 srpnja, 2025

Obnova Meštrovićevog paviljona


Saznajte više
12 lipnja, 2025

Dodijeljene nagrade Udruženja hrvatskih arhitekata za 2024.


Saznajte više
pogledaj.to
1 veljače, 2012

Oznake

arhitektura (1471) art (273) bizarno (210) DAZ (88) dizajn (565) dogadjanja (554) događanja (126) ekologija (83) festival (116) film (168) fotografija (556) grad (160) grafički dizajn (117) HDD (83) Hrvatska arhitektura (110) instalacija (253) izložba (650) javni prostor (303) koncept (139) London (115) moda (108) msu (94) nagrade (187) natječaj (440) New York City (103) oblikovanje (365) performans (82) politika (103) predavanje (122) produkt dizajn (200) prostor (222) radionica (99) Rijeka (160) skulptura (86) Split (305) stanovanje (99) street art (81) tehnologija (88) turizam (89) UHA (90) umjetnost (536) urbanizam (218) video (139) Zagreb (939) zanimljivosti (188)

Najčitanije

  • Titova vila “Izvor”, opljačkana i ...
  • Golotinjom do posla, siguran je ...
  • Issa Megaron: samoodrživa ljepotica u ...
  • Užitak pogleda na gole muškarce
  • Ubaci sliku, pa traži

Preporučujemo

  • Titova vila “Izvor”, opljačkana i ...
  • Issa Megaron: samoodrživa ljepotica u ...
  • Golotinjom do posla, siguran je ...
  • Užitak pogleda na gole muškarce
  • Legendarna hvarska Veneranda zjapi prazna
© 2020 Pogledaj.to
  • impressum
  • copyright
  • pravne odredbe
  • kontakt
  • twitter
  • facebook