
U nekoliko navrata predstavljali smo vam kuće japanskog Suppose design office-a, koji kroz svoje projekte najčešće odgovara na otežane uvjete izgradnje na zatečenim parcelama japanskih gustih urbanih sredina. Tako smo već pisali o njihovoj obiteljskoj kući u Nagoyi te klinici u Hirošimi, a jedan od njihovih posljednjih projekata također propituje alternativu uobičajenim rješenjima kod projektiranja prostora idealnih životnih uvjeta na nezavidnim lokacijama. No ova obiteljska kuća ima veze sa Obamom i projektirana je za predsjednika.
Ipak, u ovom slučaju radi se o mjestu Obama, gradiću u Japanu, a korisnik nije najmoćniji čovjek na svijetu, već predsjednik jedne lokalne kompanije. Lokacija kuće u relativnoj je blizini mora što uzrokuje jedan od osnovnih problema okolnih objekata, oštećenja fasada uzrokovanih štetnosti morske soli koju donosi vjetar.

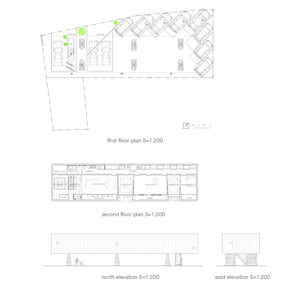
Zbog vizualne izloženosti objekta pozicioniranog na raskrižju ulica želja klijenta bila je introvertiranost kuće, do mjere potpunog zatvaranja uličnih fasada. Kuća je gotovo u cijelosti izdignuta od teritorija parcele, a čelična struktura gornjeg kata postavljena je na šest snažnih betonske stupova. Teritorij ispod kuće iskorišten je za potrebe parkiranja.
Zatvoreni plašt fasade koji okružuje objekt rezultirao je potrebom za projektiranjem takve tlocrtne dispozicije koja će svim prostorima unutar kuće pružiti potrebno dnevno svjetlo, bez projektiranja otvora na uličnim fasadama . Tako je izduženi tlocrt kuće „perforiran“ dvama unutarnjim dvorištima, koja se otvaraju prema nebu, omogućujući na taj način čitavom unutarnjem traktu dovoljnu količinu svjetlosti i prozračnosti. To ponovno rezultira uobičajenom praksom u japanskim obiteljskim kućama, gdje nisu striktno definirane granice eksterijera i interijera, pa se otvoreni i zatvoreni prostori naizgled prelijevaju jedan u drugi. Spomenuta unutarnja zona kuće tako sadržava prostorije dnevnog boravka, prostora za igru,ali i spavaće sobe, dok su kuhinja, kupaone, radni prostori te spremišta pozicionirani obodno i prozorima se otvaraju na centralni trakt, pospješujući tako ideju pretapanja otvorenog i zatvorenog prostora, ali i pojačavajući karakter socijalne interakcije korisnika kuće.












Više o japanskom Suppose design office pogledaj ovdje